Choose thermally broken steel windows and doors for the best thermal performance available.
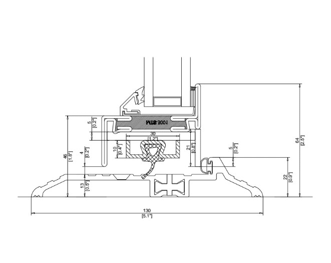
Thermally broken sections are bonded together using two materials: the first is a fiberglass reinforced extrusion and the second is a high-density polyurethane resin injected under high pressure. This process firmly joins the frame sections together, ensures a continuous bond, and provides thermal insulation while maximizing structural strength. Thermally Broken Windows and Doors are characterized by being very narrow, yet are extremely sturdy and long-lasting. The high thermal efficiency of this product provides maximum U-value. This system has excellent design flexibility with four glazing bead profiles, either mechanical or welded corners, and true divided and simulated divided glazing options available. Thermally broken windows and doors are available in a wide variety of configurations.
- The first narrow sightline, energy efficient, thermally broken steel window and door system.
- Extremely energy efficient.
- Durable design capable of utilizing triple pane glass.
- Dual neoprene gasketing system is removable, replaceable, extremely durable and very efficient.
Steel Entry uses Montanstahl /Ottostumm Swiss thermal barrier steel window system, which combines the essence of the original steel window design with modern manufacturing technology.

Thermally Broken Series Profile Range






Double Faced Adhesive


Weather Stripping


Beads Profile Range


Clips Profile Range


Gasket Profile Range


Out Swing


In Swing





